MEDICAL MALL
開業物件紹介
七道クリニックビル
医療モール紹介
七道クリニックビルは、七道駅前の新築ビルに立地するという利便性が大きな強みです。
また、徒歩圏内にはイオンモール堺鉄砲町が位置し、
買い物や飲食を楽しむついでに訪れる患者様の来院も期待できます。
近隣には、のぞみ保育園や堺市立三宝小学校があり、学生や保護者の方々が日常的に利用するエリアです。
これにより、学校帰りや送り迎えの際にも気軽に立ち寄ることが可能です。
アクセス面でも、南海本線の七道駅が近く、公共交通機関を利用する方々にも非常に便利な立地です。
南海本線の難波駅からは15分、泉大津駅からは22分で七道駅まで来ることが可能なため、
難波や泉大津付近にお住いの方はアクセスし易い環境です。
また、駅前という立地でありながら、皮膚科や小児科、耳鼻科といった専門分野の競合クリニックは0件です。
1㎞商圏の人口は約20,000人と高い人口密度を誇り、多くの住民が暮らす地域であるため、
地域密着型の医療サービスを提供するには最適なクリニックモールです。
- 開設月
- 2024年5月開設
- 住所
- 590-0906 大阪府堺市堺区三宝町 1-26
- アクセス
- 南海本線「七道駅」より徒歩1分
- 募集科目
- 内科小児科心療内科皮膚科耳鼻咽喉科
- 魅力ポイント
- 駅前物件駐車場あり
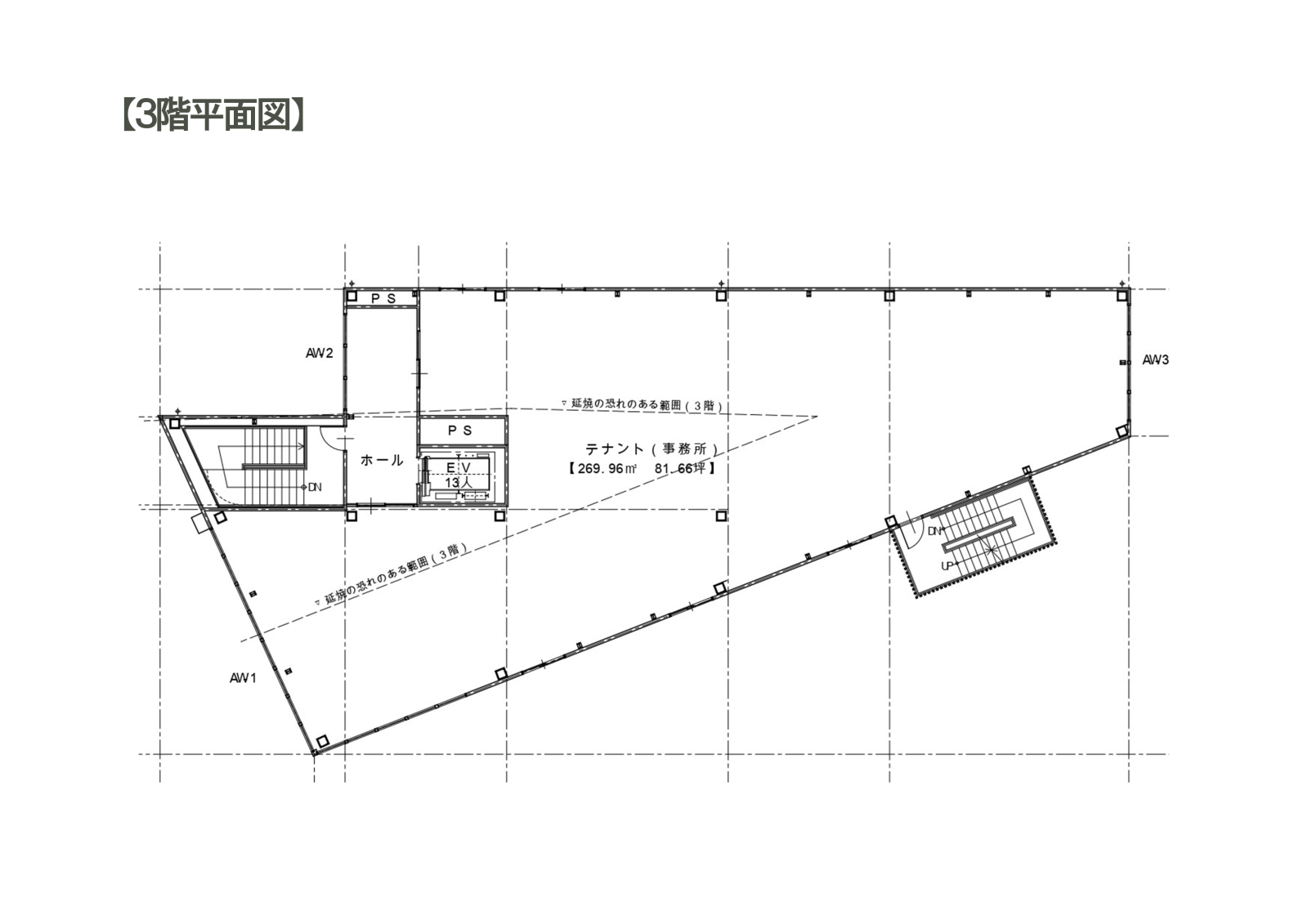
- 平面図
※画像クリックで拡大 -
- 区画情報
-
- 区画名 ステータス
- 2F: 36.11坪募集中
- 2F: 45.55坪(小児科)交渉中
- 3F: 81.66坪(整形外科)決定
医療ビルの紹介
七道クリニックビルは、七道駅前の新築ビルに立地するという利便性が大きな強みです。
また、徒歩圏内にはイオンモール堺鉄砲町が位置し、
買い物や飲食を楽しむついでに訪れる患者様の来院も期待できます。
近隣には、のぞみ保育園や堺市立三宝小学校があり、学生や保護者の方々が日常的に利用するエリアです。
これにより、学校帰りや送り迎えの際にも気軽に立ち寄ることが可能です。
アクセス面でも、南海本線の七道駅が近く、公共交通機関を利用する方々にも非常に便利な立地です。
南海本線の難波駅からは15分、泉大津駅からは22分で七道駅まで来ることが可能なため、
難波や泉大津付近にお住いの方はアクセスし易い環境です。
また、駅前という立地でありながら、皮膚科や小児科、耳鼻科といった専門分野の競合クリニックは0件です。
1㎞商圏の人口は約20,000人と高い人口密度を誇り、多くの住民が暮らす地域であるため、
地域密着型の医療サービスを提供するには最適なクリニックモールです。
近隣エリアマップ
周辺施設
- 商業施設
- 学校施設
- 保育施設
- 役所・公共施設
- 交通機関
- イオンモール堺鉄砲町 徒歩3分 (235m)
- ローソン 南海七道駅前店 徒歩1分 (70m)
- セブン-イレブン 堺三宝町2丁店 徒歩3分 (190m)
- ローソン 堺鉄砲町西店 徒歩5分 (400m)
- 堺市立三宝小学校 徒歩12分 (900m)
- 堺市立月州中学校 徒歩13分 (1.0km)
- のぞみ保育園 徒歩3分 (230m)
- 錦西こども園 徒歩9分 (650m)
- アップル保育園 綾ノ町 徒歩9分 (700m)
- きらら保育園 七道ルーム 徒歩11分 (850m)
- 堺七道郵便局 徒歩3分 (170m)
- 堺三宝郵便局 徒歩7分 (550m)
- 南海本線「七道駅」 徒歩1分 (27m)
開業支援のプロがあなたの理想の開業地探しをサポート
まずは一度ご相談ください。
開業物件に関するご相談や資料請求は
こちらから承ります。
-
ドクター・開業支援担当の方専用ダイヤル
-
物件に関するお問い合わせはこちら






